Sea-view duplex apartment for sale in Sainte-Maxime
83120 Sainte-Maxime—Ref. M0132va
For sale at our Sainte-Maxime estate agency, a sea-view duplex flat in an imposing 1930s apartment block very close to the port, shops and public transport.
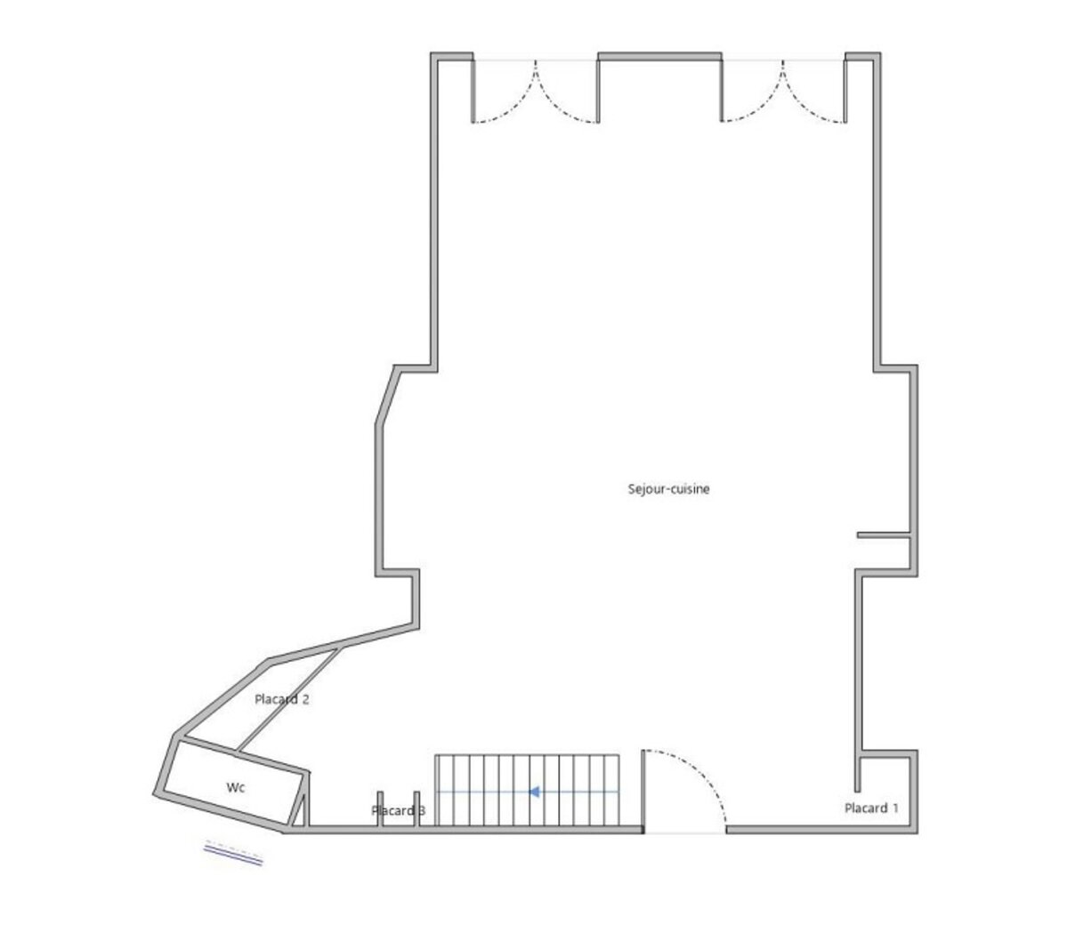
In a quiet upper-floor location with lift, the apartment has been renovated throughout in contemporary style, with a superbly high ceiling in the living room.
The kitchen opens onto the dining room, there is a reading nook under the very stylish staircase, and the guest toilet and the closet containing the laundry area are on the lower floor, while the two bedrooms are upstairs, along with a beautiful shower room.
There is an exceptionally restful view of the sea and the lush landscape, and the materials used are of remarkably high quality. Ducted air conditioning, new wiring and plumbing, 120 cm floor tiles, chic modern décor.
The apartment is in a beautiful building at the end of the port, so shops and festivities can be reached on foot but are not intrusive.
Sainte-Maxime is a charming Provençal village with a lively port where fishing boats and yachts rock gently on the turquoise waters of the Mediterranean. Its narrow alleyways lined with pastel-fronted houses and little artisanal shops invite you to stroll in the shade of the plane trees – an invitation that stands all year round. The mood here is tranquil, the pace set by the chirping of the cicadas and the sweet fragrance of Mediterranean flowers.
Rare to the market, perfect for a young couple with children or ideal as a super-trendy pied-à-terre! Viewing is encouraged on this beautiful apartment for sale at our Sainte-Maxime estate agency.
Number of lots: 58
Estimated service charges: €1.177 / year
No proceedings in progress
Information on the risks to which this property is exposed is available on the Georisques website : http://www.georisques.gouv.fr
In accordance with current regulations, the EPC surface area of this property is calculated based on a standardised measurement of the living space. This measurement may differ from the total surface area measured accurately by our sales teams.
In a quiet upper-floor location with lift, the apartment has been renovated throughout in contemporary style, with a superbly high ceiling in the living room.
The kitchen opens onto the dining room, there is a reading nook under the very stylish staircase, and the guest toilet and the closet containing the laundry area are on the lower floor, while the two bedrooms are upstairs, along with a beautiful shower room.
There is an exceptionally restful view of the sea and the lush landscape, and the materials used are of remarkably high quality. Ducted air conditioning, new wiring and plumbing, 120 cm floor tiles, chic modern décor.
The apartment is in a beautiful building at the end of the port, so shops and festivities can be reached on foot but are not intrusive.
Sainte-Maxime is a charming Provençal village with a lively port where fishing boats and yachts rock gently on the turquoise waters of the Mediterranean. Its narrow alleyways lined with pastel-fronted houses and little artisanal shops invite you to stroll in the shade of the plane trees – an invitation that stands all year round. The mood here is tranquil, the pace set by the chirping of the cicadas and the sweet fragrance of Mediterranean flowers.
Rare to the market, perfect for a young couple with children or ideal as a super-trendy pied-à-terre! Viewing is encouraged on this beautiful apartment for sale at our Sainte-Maxime estate agency.
Number of lots: 58
Estimated service charges: €1.177 / year
No proceedings in progress
Information on the risks to which this property is exposed is available on the Georisques website : http://www.georisques.gouv.fr
In accordance with current regulations, the EPC surface area of this property is calculated based on a standardised measurement of the living space. This measurement may differ from the total surface area measured accurately by our sales teams.
| Property ID | M0132va |
|---|---|
| Asking price | € 585.000 |
| Type of house | Apartment |
| Living area | 72 m² |
| Lot surface area | - |
| Year of construction | - |
| Renovation year | - |
| Bedrooms | 2 |
| Bathrooms | - |
| Garages | - |
| Shower rooms | 1 |
| Cadastral Income | - |
|---|---|
| EPC | 111 kWh/m² |
| Unique code | - |
| Flood area | Niet medegedeeld |
| Planning permit | - |
| Parcelling permit | - |
| Planning permit | Other |
| Pre-emptive right | - |
| Originating Summons | - |
| Judicial decision | - |
Janssens Immobilier Sainte-Maxime avenue Charles de Gaulle 12, 83120 Sainte-Maxime
- Telephone:+33.4.94.96.43.13
- EMAIL:info.var@janssenskf.com
- Website:www.janssens-immobilier.com


















